业主需求:
1:男业主喜欢北欧风,女业主喜欢工业风
2:一楼有独立的卫生间
3:过道利用率低,希望充分利用空间
4:有个独立衣帽间与练瑜伽的空间
5:现格局采光较差,希望整体空间明亮通透
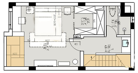
设计平面图/Paln

户型解析:
一楼:针对原户型狭长,过道采光不足的问题,设计师采用半开放式的中西厨空间设计,拆除厨房区闭合式墙体,增加了采光,改动楼梯位置,增加一楼卫生间区域,利用楼梯下方空间增加储物收纳。
二楼打通主卧阳台并入卧室设计小地台扩大整体空间,利用过道空间设计干湿分离,借卫生间部分空间纳入主卧做独立衣帽间,满足了业主的需求。
案例解析
楼盘:海派青城
面积:80㎡小复式
风格:北欧+工业风
设计师:陈宾宾

客厅/livingroom
客厅白砖的肌理质感作为沙发背景墙,与浅胡桃色的地板,简洁的电视墙相互对比调和。

温和自然又有岁月吊顶斑驳感,开启进门的吊灯与沙发背景的轨道灯,客厅的氛围温馨小资。

餐厅/Diningroom
打通厨房墙体,采用玻璃隔断的形式,既保证中厨的独立性,又增加了采光空间,吧台既有就餐功能,亦可在此办公小憩

厨房/Kitchen
厨房采用半墙式结构配上铁艺框架玻璃设计,立显空间的宽敞明亮,视野上一览无余,光感厨房应景而出。

楼梯/Stairway
采用最省钱的方式不动楼梯结构的情况下,改动楼梯起步三踏步成转角楼梯,楼梯下面也把储物空间充分的利用起来,既是储物区亦是水吧台区。

卧室/Bedroom
二楼有一个长过道,卫生间设计干湿分离,这样原方形卫生间的宽度就能减少,再在中间隔出一间衣帽间。卧室满满的复古风-铁艺的元素,工业风的红砖文化,可见男业主对女主人的宠爱满满呀,原阳台区设计小地台,供女主人平时练瑜伽用,也可以增加储物空间。
生活需要仪式感,有时候仪式感其实很简单,一些精致的或者有意思的小饰品,这点点点滴滴都是家里爱的见证

儿童房/Childrens room
次卧是小公主的天地啦,以宝宝的心里考虑,床靠边放是具有很大安全感的,粉色的墙面,满满的公主梦。

卫生间/Bathroom
主卫设计工业风采用干湿分离,卫浴空间采用灰色系的水泥砖作为主要材料,耐脏亦防滑。

客卫满满的宜家北欧风,与主卫的风格迥然不同,网红格子砖简洁明亮。

庭院/Courtyard
入户景观采用草皮+青石板+防腐木结合设计一个生态景观区,可供休憩娱乐亦可在节假日来个BBQ哦

陈宾宾设计师与业主合影