本期业主是一个三口之家,房屋户型方正,所以在布局上改动细微。另外,男主人喜爱茶文化,所以希望家中有茶室,希望整个房屋更有品质感。所以设计师采用日式简约风格为基础,打造日式禅意的调性与房主期盼的茶文化更加契合。

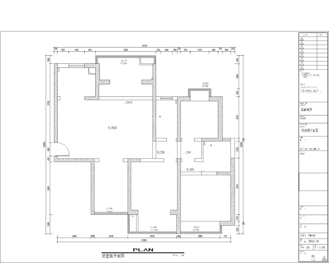
原始平面图

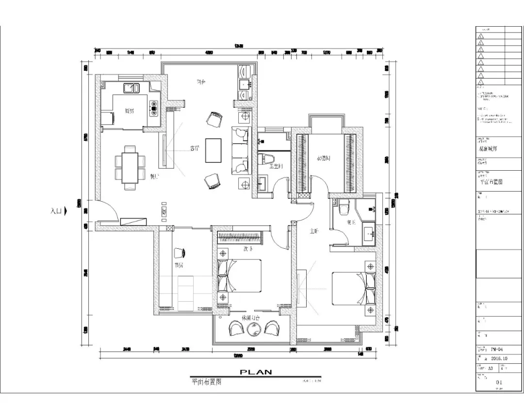
平面设计图
面积:140㎡
风格:日式简约
户型:三室二厅一厨二卫
预算:32万
装修团队:俞润空间设计
本案设计师

兰敏
总监设计师
(擅长风格:现代、新中式、轻奢、日式)
1、一份禅意 ,一份清浅,简洁的空间,没有多余的造型;
2、枯竹的设计,点亮空间,使入户看起来不沉闷;
3、玻璃门厨房的设计,使整个空间更加开敞,也很好的利用了自然采光;
4、浅色沙发与木制饰品的对比使空间看起来更加明亮,木制家具,茶盘茶艺让整体看起来更统一,凸现禅茶一味意境。

本屋采用日式简约风格,所以在全屋没有做过多的装饰,进门玄关摆放换鞋凳以及一个极具日式风格的鞋柜。并以枯竹的造型打造一个装饰性屏风,点亮空间,使入户看起来不沉闷。

明晰的线条、纯净的四壁,彰显出日式风格简朴高雅的独特格调。无论是客厅的整体布局、还是局部设计,都采用一些天然装修材料,包括:草、竹、席、木、纸、藤、石等,这些材料源于自然,天然环保。家具的使用设计师尽量保持原色不加修饰,这是一种亲近自然的装修方式,同时它还展示出一种祥和的生活意境与宁静致远的生活心态。

设计师巧妙的用电视墙作为隔断,将餐厅与客厅的分隔开,使整个空间区域更加规整。

日式风格讲究线条简洁,陈列简单,所在在餐厅的设计上摒弃了许多较为繁琐复杂的曲线造型,采用的是清晰的装饰线条,这样能增强居室空间感。并且餐桌椅、餐桌顶灯都采用日式的竹、木材料,与玄关巧妙融合在一起,更加贴合自然,不仅住在自然,更食在自然。

主卧延用了日式风格的室内设计形成了“小、精、巧”的造型模式,从吊灯的造型到床头柜的设计都创造特定的幽柔润泽的光影。在墙面上没有过多的装饰,床头柜的选材搭配上也是满满的日式简约风。使得整个卧室空间更加明亮,增强了卧室的空间感。

遵循屋主的要求,将书房打造成茶室与办公区域相结合。既然是日式简约风,茶室的榻榻米自然是不可获取的。统一原木色的家具与整屋风格融合。同时将办公区域也规划在内,充分考虑到屋主在工作与休闲的双向需求。在动线设计考虑上,屋主在工作之余,直接在榻榻米休息喝茶,意境十足。

虽然是整屋日式风格,但是整体空间并没有日本房屋那么紧凑,所以卫生间采用3分离,空间绰绰有余。极简造型的洗手台搭配原木色柜体,不仅让卫生间看起来更加干净、明亮,更增加了收纳空间,简直是“洁癖患者”的福音。