本期业主是一对90后的年轻夫妻,钟爱干净利落的风格。房屋整体采用简约式内饰,没有过多繁复的造型,希望能用简约的装修带来不简单的体验,既素雅又能精致。

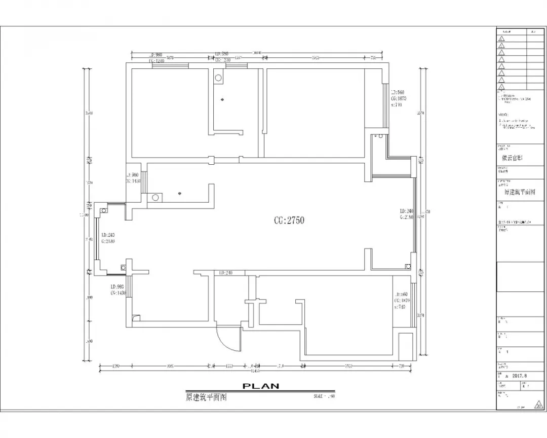
原始平面图

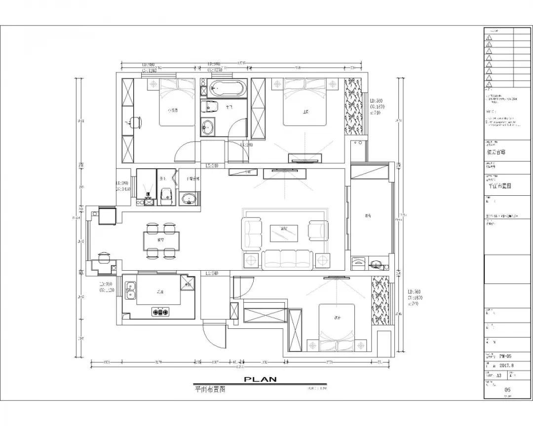
平面设计图
面积:110㎡
风格:简约
户型:三室二厅一厨二卫
预算:24万
装修团队:俞润空间设计
本案设计师

兰敏
总监设计师
(擅长风格:现代、新中式、轻奢、日式)
1、公共空间主要以白色墙面,水泥砖,木色家具为主,干净利落;
2、屋内整合了很多小装饰,小植物等细节方面,尽显精致;
3、整屋不仅照顾到了业主的简约需求,同时增加了很多收纳空间;
4、儿童房增加了很多童趣的设定,丝毫不与整屋风格相悖。

白色是无可取代的,它既是最普通又是最时髦的存在,白色素雅的外表下隐藏着最丰富的情感,不一样的白色总能表达出不同的空间意向和家居情感。

公共空间主要以白色墙面,水泥砖,木色家具为主,客厅灰色布艺沙发,咖色窗帘使空间温文尔雅。挂毯,旅途木框装饰画,小植物,懒人沙发在空间里伴出那星星点点的慵懒时光。

餐厅没有过多的装饰,依旧遵照业主要求的风格,黑白两色为主基调颜色,包括餐吊灯、墙上画框的颜色都与墙体相映衬。木色家具落于简单水彩挂画边,仿佛看到了自然、纯朴的云水谣。

主卧浅灰色墙面,麻布窗帘,灰色床品,自然风装饰画,加上整个空间无论从家具还是装修,线条感明显,整个空间简单到刚刚好。

儿童房衣柜结合书桌,即满足了储物的实用性,又节省了卧室的空间,灰度蓝墙面、大地色窗帘、动物森系风装饰画,使空间增加了小孩特有的纯真。

U型厨房结构,不仅让动线更加合理,也让厨房整个空间的功能性更加清晰。原木色的一体橱柜,与整个房屋的风格融为一体,上下橱柜的设计,更大增加了收纳性。

厨卫一体大家肯定听过,所以设计师也将卫生间的整体风格紧随厨房,洗手台与厨房采用一致的橱柜。干湿分离必不可少。为了让屋主更加体验精致生活,不仅保留了淋浴喷头,也加设了浴缸,一举两得。一天的劳累就通过浴缸浴来放松吧~