本案例业主是一对热情活力,年轻有为的美国海归夫妇,女主是一位漂亮的女博士,知性大方,喜欢朴实、自然的原木感,但是又向往北欧风的格调,男主是位IT男,幽默风趣,他们都喜爱运动健身。家里还有两只可爱的猫咪弟弟,业主说希望她家的猫咪能有大的活动空间,所以在设计上把客厅和餐厅规划的特别简洁和宽阔!

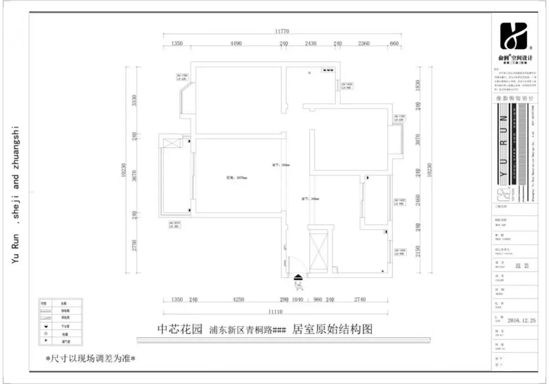
原始结构图

平面设计图
面积:108㎡
风格:北欧简约
户型:两房两厅一厨两卫
预算:半包7万
装修团队:俞润空间设计

范云
首席设计师
(擅长风格:现代简约、北欧、地中海、简美、欧式、新中式)
设计源于生活,生活因设计而改变!成就空间和谐,让设计物有所值,让细节缔造完美!
1、优化户型,将入户门外开,不占用室内空间;
2、入户与厨房之间的墙壁敲掉一部分,保留一定入户衣帽柜的空间,又扩大了厨房的空间;
3、将北阳台扩进餐厅,开阔视野,原北阳台设计成榻榻米兼书桌,既可以作为工作区域,也可以作为临时客房,储物功能增强;

在入户处设计一到顶的白色玄关衣帽柜,除了兼具收纳和展示两个功能以外,还可以在底部置放一些鞋子,利用每一寸空间。入户进入餐厅的墙角处放置一个类似木桩的装饰物,不仅可以起到保护装饰作用,也能成为家里2只猫咪宠物的攀爬玩物。

客厅整个空间以浅奶咖色调与温暖木色进行搭配,营造出柔和温润的生活气息,为了突出电视背景,选用灰色调乳胶漆,与沙发的灰色调相辅相成。蓝灰色的墙面空间,木色地板和乳色茶几,灰色的布艺沙发搭配灰色毛毯,背景上一组装饰画,整个空间简单又清新。

作为家庭活动的核心区域,是各色色块形塑而成的多彩空间;柔软舒适的沙发慰藉了一天的辛劳。电脑桌设在光线充足的客厅一角感受忙里偷闲。

由于客厅整体空间不是很大,所以将朝南的阳台扩进客厅,把客厅衬托的更为大气,采光也更好,但是考虑到阳台和客厅需要作功能区分,阳台门洞内侧装了窗帘,使得私密性也更好一些。

色的餐边柜与木色餐桌搭配,给整体设计带来一股大自然风气,清新自然,带点金属材质的吊灯的点缀则为空间增加了一点亮色。

厨房选用灰色系墙地砖,墙砖是加工砖,考究贴砖师傅的手艺,与白色的整体橱柜相映衬,干净又明亮,简约中不失时尚大气。最大化利用空间,设计转角橱柜,主要放置厨房电器。

蓝色,一般都是静谧的代表,在整个卧室的设计中,我们的设计师就选择了以蓝色为底色,配以灰白色的窗帘和床上用品,为这个静谧的空间增添了几份异样的色彩。

雅致的飘窗设计,使整个卧室变得更加的宽阔。在闲暇的午后,夫妻二人抱着猫咪,品一杯幽香的茶茗,或躺、或坐,一起感受岁月的静好。不规则的吸灯,加上别具特色的挂画,满满的摩登气息扑面而来。

蓝灰色乳胶漆,白色的宜家家具,相互映衬,呈现优雅知性的魅力,床头柜上线条简洁的台灯和亚麻床品使卧室多了一份温馨感,灰色素雅的窗帘给卧室增添层次感。

次卧考虑收纳功能,定制白色榻榻米,墙面选用姜黄色漆,使卧室呈现活泼、快乐的氛围,以后作为宝宝房独树一帜,充满快乐与希望。

在没有宝宝的二人时光,次卧作多功能房使用,设计榻榻米连柜双人书桌,夫妻二人一起工作互不影响。

餐厅将北阳台扩进来,定制木色榻榻米,书桌与之融为一体,一方面合理利用空间,增加储物功能,另他一方面朋友过来也可以过夜。

将跑步机和猫树安置在南阳台,主人运动时不仅窗户外的视野尽收眼底,也成为与家里的猫共处的美好空间。

卫生间选用个性的灰色仿古砖,与白色洁具与原木饰面共同将空间分割成三部分,空间内的浴室柜、镜子、洗手盆却以各自的线条,在简约中绽放。

浴缸墙面特意设计了一个可以放IPAD的间隔,方便屋主沐浴时观看电影电视的需求,生活需要享受。