
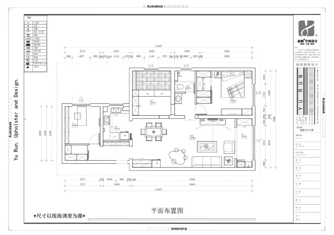
△ 户型图
本次与俞润合作的业主是简单的一家三口,房子有一定的年限,户型也是比较中规中矩的老房子状态。所以业主比较看重收纳空间以及厨房的多功能性。原本房屋内部没有玄关设计,在入门口没有收纳位置,不太方便;房屋户型上客餐厅比较狭长,所以会减弱客厅的光线,并且餐厅的光线同样不是很好。俞润空间设计师面对上海房屋这类问题早已游刃有余,重新改造房屋布局,改善光线照射空间,重新为这套房子引来光亮。
建筑面积:130㎡
风格:简约风格
户型:三房两厅一厨一卫一阳台
预算:21万
装修团队:俞润空间设计
本案设计师

朱玉婉
总监设计师
(擅长风格:美式、地中海、工业风、现代简约)
没有什么是最好的,根据不同人的需要,去设计最适合他们的居室,从而让他们得到一定的满足感,而他们的满足就是我的最终目标。
1、重新改造客餐厅连接厨房的布局,将厨房的门洞改到餐厅,厨房的光线引到餐厅;
2、将原来厨房的的门洞打造成入门鞋柜玄关,增加收纳功能;
3、过于狭长的书房,用一块空间做成储藏室,增加收纳功能;
4、借用卫生间一点空间,为主卧打造一个衣帽间;
5、次卧采用榻榻米的设计 增加收纳功能。

设计师按照业主的要求为房屋重新打造一个入户鞋柜式玄关,将原先厨房的门洞改成鞋柜玄关,使得入户空间搭配上简约风格更加具有设计感,玄关的设定使得房屋区域空间更加立体,鞋柜玄关也增加了收纳空间。

由于原来厨房的门洞设计,加上整体客餐厅的户型更加狭长,使得整体的光线得不到充足的照射。设计师通过修改厨房门洞朝向的巧妙设计,将厨房的光线引到餐厅,使得整个客餐厅的光线更加充足,搭配简约风格的装饰,让整个空间更加明亮宽敞。

餐桌旁增加了餐边柜,增加收纳空间,增添整个风格的设计性。

遵循业主对于厨房功能性的要求,设计师重新设计厨房整体橱柜,打造全新的U型橱柜。增加整个厨房的收纳空间,增强厨房每个位置的功能性。

主卧的整体风格遵循整体家装的风格,家装采用浅色系为基础,布局上原木色家具,更加体现简约风格。借用过大的卫生间的一点空间,重新打造一个衣帽间,解决业主对于收纳的需求。


次卧采用榻榻米的风格,不仅与整个家装风格保持一致,同时也增加了收纳功能。

重新为书房打造了整体墙面柜,大大增加了整体的收纳空间,也增加了美观性。

已经原本房屋户型上,书房过于狭长,浪费不少空间。设计师重新打造空间布局,将一部分空间做成储藏室,增加了收纳空间。平时家里的杂物有了属于它的空间,也不会打乱整个家装空间。使得整个屋内空间更加简约整洁。

极大的保留了阳台原先的空间布局,通过在阳台两端打造到顶的收纳柜,一方面增加收纳空间;另一方面也使得阳台空间更加明亮。

因为被主卧借用了一部分空间作为衣帽间,所以在为了保证整个卫生间的宽敞度,设计师特意将洗手台安置在卫生间门外。这个设计,一个好处是真正实现卫生间的干湿分离;二是能解决平时一个卫生间的早晚间资源使用紧张问题。