本案是新婚房,客厅作为接待区,一般要求简约明快,同时装修较其它空间更要明快简洁,卧室里美式家具的布置较为温馨,作为主人的私密空间,主要以功能性和舒适为考虑的重点。

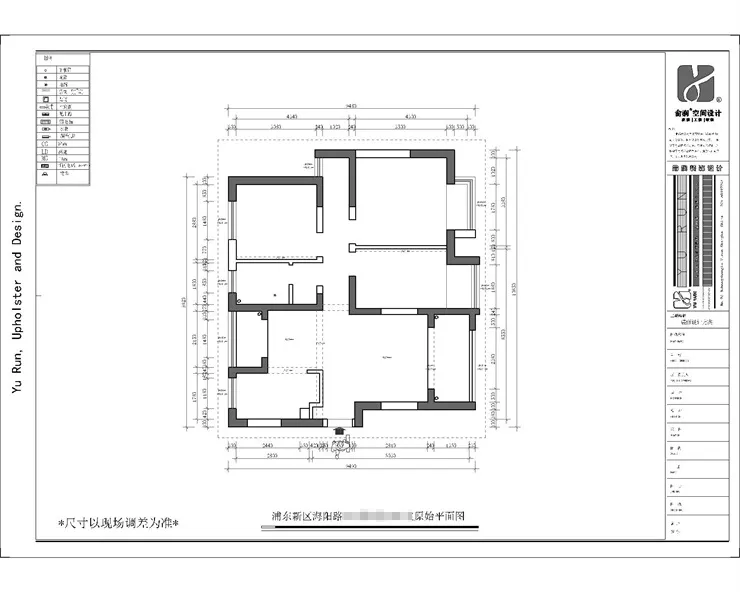
原始结构图

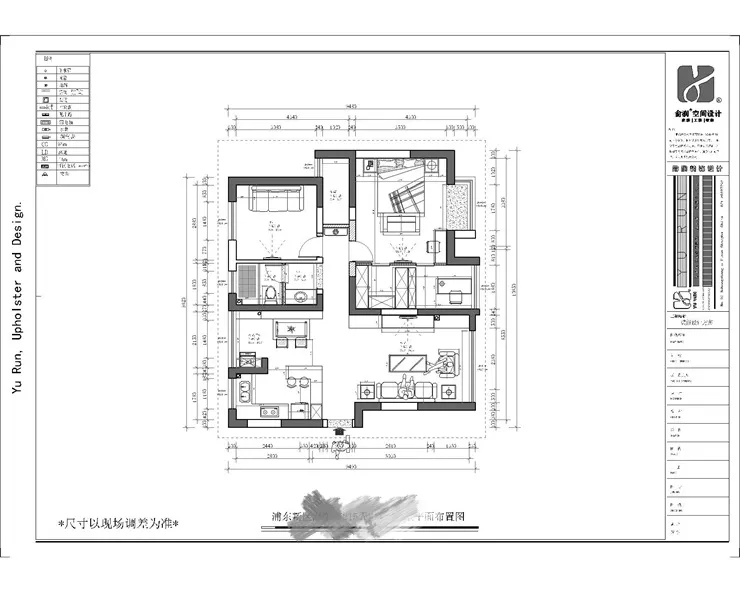
装修后结构图
不需要太多的花样和繁杂的色系,主张淳朴简约,强调一种心神的回归,本案无论在空间布局,色彩运用上,还是在选材上,处处遵循简约而不凡的美式简约风格。
面积:100㎡
风格:美式简约
户型:三室一厅一厨一卫一阳台
预算:14万
装修团队:俞润空间设计
本案设计师

朱玉婉
总监设计师
(擅长风格:美式、地中海、工业风、现代简约)
没有什么是最好的,根据不同人的需要,去设计最适合他们的居室,从而让他们得到一定的满足感,而他们的满足就是我的最终目标。
1、遵循屋主追求美式简约的期盼,所在在全屋的设计选材颜色等方面都选取单一的美式色系为基调;
2、开放式厨房,并增加了岛台,符合美式风格,也让用餐环境更具情调;
3、电视墙的壁炉设计让整个客厅充满浓浓美式味;

客厅区域整体的硬装设计主要是以白色和原木色为主,家具大多采用原木,搭配原木色沙发,电视墙加入了美式壁炉的设计风格,让整个客厅充斥着原始美式风格的味道。阳光从客厅落地大窗照射进来,让整个客厅更加温馨。

餐厅继续延续客厅整体的风格,采用美式风格的餐桌与靠椅。客厅、餐厅相互连通,让整个空间的美式风更加彻底。

为了符合整体美式风格的装修,厨房采用了半开放式的风格,更加贴合美式用餐环境。

并搭配中岛台,让新婚二人的用餐环境更具情调。

主卧遵循屋主简约美式的要求。没有做过多的装饰,在整床有床头柜的设计上依旧采用的是传统美式的风格,床头背景采用深木色边框加藏青色皮面,房间便多了一丝稳重气息,与整个浅色墙面交织对比也丰富了空间层次感。
另外增加了一条床尾凳,大大的还原了美式卧室的整体风格,让居住在此的这对新人拥有很强的代入感。

次卧暂时闲置,未来将置办成孩子的房间,留白也给了未来更多的选择和想象空间。

这套房子的书房置于主卧内,通过主卧电视后墙一侧的隐藏拉门方式进入书房。

书房保持美式的色系风格,在桌椅的选择上,钟情于更加简约式,并且靠椅的选择更具设计性。借用主卧的窗户,让书房整个采光更好。

而主卧电视后墙另一侧的隐藏拉门则通往设计师为这对新人打造的衣帽间。隐藏式拉门既不占用空间,也增加了设计性。

干湿分离的卫生间设计已经越来越普及在各个家庭,即使卫生间的空间不够,依旧可以像这套房子的设计一样,借用过道的一点位置。不仅保证了卫生间的功能使用,干湿分离依旧做好了,也方便了家人的使用。而且将洗手台放置在卫生间外,搭配整个美式的风格,让本来平淡无奇的过道,增加了设计感。