• 免费量房:
  • 400-800-5611
  • 60平原木风 | 百兴花园
  • 浏览人数:316次     更新时间:2026-03-23
  • 日式风格
  • 案例风格
  • 二居
  • 案例户型
  • 60㎡
  • 案例面积
  • 楼盘名称
  • 杨浦区
  • 所在区域
  • 袁成玲
  • 设计师
  • 本案例服务设计师
  • 袁成玲
  • 设计师:袁成玲
  • 资深总监设计师
  • 经验18年
  • 擅长风格:简约,法式,现代,日式
  • 找TA设计
  • 设计理
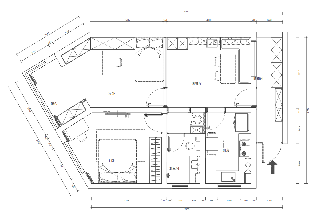
  • 户型图
  • 客厅
  • 主卧
  • 次卧
  • 卫生间
  • 厨房
  • 户型图
  • 封面

更多案例

  • 抢免费设计名额
  • 立即预约
  • 俞润承诺,您的信息,我们将严格保密请放心填写
  • 恭喜您预约成功
  • 装修计算器
  • 今天已有829位业主获取装修预算
  • 户型结构:
  • 装修风格:
  • 房屋面积:
  • 手机号码:
  • 我们家装修该花   万元
  • 主材费:    
  • 人工费:    
  • 辅材费:    
  • 提示:本报价仅供参考因材料品牌及工程量不同具体报价以量房实测为准
  • 您家的装修预算   元
  • 主材费:    
  • 人工费:    
  • 辅材费:    
  • *
  • 报价有疑问?稍后装修顾问将来电为您解忧。
  • *
  • 本报价仅供参考因材料品牌及工程量不同具体报价以量房实测为准
  • 6大保障为装修保驾护航
  • 信用保障
  • 俞润设计荣获315诚信优秀单位,诚信可靠
  • 设计保障
  • 免费上门量房设计出方案预算报价
  • 材料保障
  • 市面最低,差价贵一赔十
  • 施工保障
  • 47道装修标准,施工过程严格把关,苛求施工质量
  • 投诉保障
  • 多维度快速维权,不再扯皮推诿,不再无投诉无监管
  • 售后保障
  • 水电十年,隐蔽三年